Project Collaboration
Complex projects often required input from experts in various fields such as engineers, surveyors, or the local council.
As the Landscape Architect, it was my role to ensure that the vision of the client was communicated to these experts throughout the process, managing expectations and design decisions.
Wyndham Road
Following a severe storm event, the existing retaining walls that were well outdated collapsed. This created both an immediate priority and an unexpected opportunity. Reinstating the walls correctly allowed the site to be reshaped, unlocking valuable backyard space while improving both usability and overall property value.
The project began with a detailed survey, and the early involvement of geotechnical engineers to ensure ground conditions were fully understood for the design work to be undertaken. Initial design concepts were developed to clearly communicate the client's goals to the project team, evolving as specialist input and collaboration informed the final outcome.
The completed design comprises a series of terraced timber retaining walls, with steel posts strategically used to keep the solution within a realistic budget. The result is a stable, functional outdoor space that restores confidence in the site, and returns meaningful use back to the backyard for years to come.
Year | 2023-2025
Updated stair plans to accommodate changed heights of walls.
Section showing new wall, and stair placement relations.
Surveyor information to provide a solid foundation for the design works over top, provided by surveying team.
Wall layout plan provided by geotechnical engineers.
Wall layout sections provided by geotechnical engineers.
Sectional views of wall layout plan provided by geotechnical engineers.
Embedment depths for retaining wall posts provided by geotechnical engineers.
The bottom level of the terraced retaining walls.
Width of new area created at the bottom for the client.
View of the area between walls 1 and 2.
View overlooking the space between walls 1 and 2.
Wellington Golf Course
This projected emerged as a rare opportunity to support a public funding proposal for upgrades to a well-used golf course in Wellington. The brief focused on refreshing key elements across both the 9, and 18-hole courses. Key targeted interventions were designed to either soften or increase the level of challenge, depending on the organisers' intent.
Working from existing site imagery and drone footage supplied by the organisers, the designs were developed to clearly communicate the proposed changes to a public audience. Key interventions included enhanced planting to create clear guidance through the course, selective tree removal to improve playability, repositioned tees to reinvigorate the courses, and the introduction of new buildings to improve the overall experience.
The resulting visuals formed a clear and engaging narrative to support the funding process, in a time senstive manner as well.
Year | 2023-2025
Aerial view of the creation of solid pathways and newly placed tees for holes on the 9-hole course. Laid out to strengthen connection between the hole and next tee, helping to avoid confusion for new users of the space.
Image showing the new turned around orientation and increased size of the tee, providing a refreshed sense to the hole.
Image showing a new pavilion put into the 18-hole course, helping to provide a new bathroom and refreshment area for longer Summer games.
Aerial view of the new access to several tees for the 9-hole course, hidden through strategic planting.
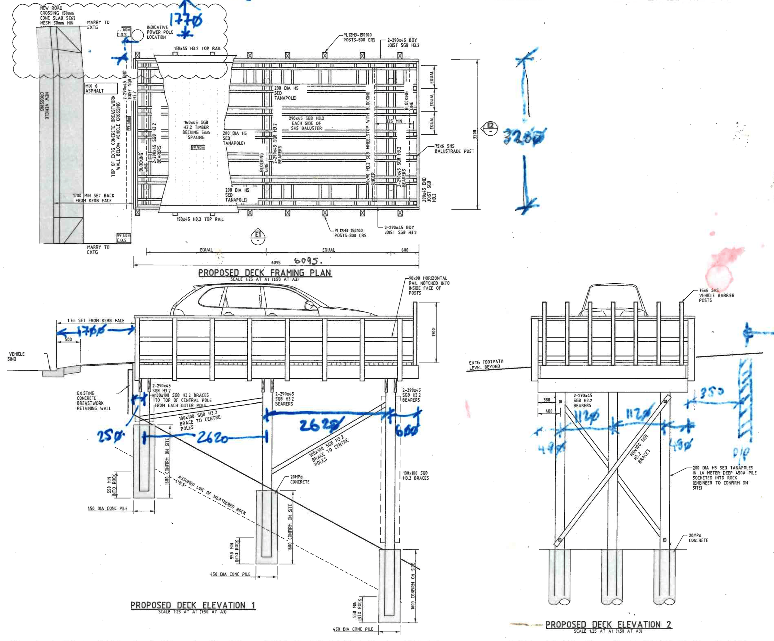
Sefton Street
Following reports regarding the lack of safety from a staircase connecting a cardeck to the bottom of a property, the client contacted us for a cost effective solution to the issue.
Restricted by budget, I worked with dated information such as old surveying work, drawings provided by builders, and my own laser measurements to get the information required.
After working through several iterations with the client, a final design was created to tie in with the existing timber aesthetic. Consultation with geotechnical engineers helped to keep costs low, bracing the staircase posts with external members where possible, instead of embedding further into the ground. The final result was one that satisfied both the council, and the client.
Year | 2023-2025
Provided surveying information to be worked off of.
Provided existing cardeck information to be designed off of.
Plan view of the proposed stairs down from the existing cardeck.
A section of the works are undertaken in the public road reserve, creating complications in the design.
How the proposed stairs tie into the existing condition surrounding the works.